| Autor |
Beitrag |
   
Susanne

| | Veröffentlicht am Montag, den 11. Oktober, 1999 - 17:33: |
|
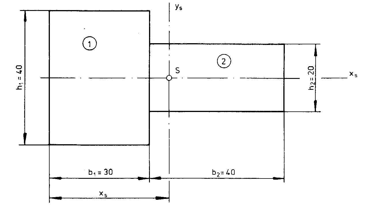
Errechnen Sie für den abgebildeten Querschnitt a) das Trägheitsmoment Ixs ges und b) das Wiederstandsmoment Wxs ges c) Wie groß ist das Trägheitsmoment Iys ges?
Kann mir da jemand helfen ?? |
   
Anonym

| | Veröffentlicht am Montag, den 11. Oktober, 1999 - 21:20: |
|
Hallo, Susanne ! a) Flächenträgheitsmoment Ix I = (b*h^3)/12 (Rechteck) + (ev.) Steiner´sche Ergänzung d.h.: Ix = (30*40^3)/12 + (40*20^3)/12 = 1,867*10^5 [Längeneinh.^4] b) Widerstandsmoment Wx Widerstandsmoment W = I/e (e=Randfaserabstand) W(1) = 1,867*10^5 / 20 = 9,335*10^3 [L.e.^3] W(2) = 1,867*10^5 / 10 = 1,867*10^4 " c) Trägheitsmoment Iy Iy = 40*30^3/12 + (40*30)*((xs-30)+30/2)^2 +20*(xs-30)^3/12 + (20*(xs-30))*((xs-30)/2)^2 +20*(70-xs)^3/12 + 20*(70-xs)*((70-xs)/2)^2 |
   
Susanne

| | Veröffentlicht am Dienstag, den 12. Oktober, 1999 - 12:38: |
|
Vielen Dank an den "anonymen Hilfeleister" ! DANKE !!! |
   
Anonym

| | Veröffentlicht am Dienstag, den 12. Oktober, 1999 - 18:18: |
|
GERN GESCHEHEN! ICH DENKE, XS HAST DU ALLEIN (durch Drehmomentengleichgewicht) herausgefunden... |
   
Judith

| | Veröffentlicht am Dienstag, den 25. Juli, 2000 - 10:26: |
|
Hallo !! Brauche Hilfe sitze an so einer ähnlichen Aufgabe. Berechnen des Trägheitsmoment ich komme mit der Lösung hier nicht weiter. Dann mir jemand die Formeln erklären. |
|